City Forum & Plaza in Euskirchen

Der Landkreis Euskirchen wurde 2021 stark von der Flutkatastrophe getroffen, was zu zivilen Opfern und Milliardenschäden führte. Besonders betroffen war das City-Forum am Klostergarten, das 2019 saniert worden war, aber wegen der Pandemie und Flutschäden abgerissen wurde. Die Stadt Euskirchen plant nun einen Neubau südlich des Bahnhofs. Dieses Projekt soll durch Fördermittel für den Wiederaufbau finanziert werden.

Projektdaten

Auslober:inStadt Euskirchen, vertreten durch assmann GmbH
StandortEuskirchen, Deutschland
NutzungVeranstaltungshalle mit Büro- und Konferenzräumen
ZielNeubau des City-Forums als Veranstaltungsstätte mit 1.200 Sitzplätzen und die Gestaltung der Plaza mit Außenbühne, Freianlagen und öffentlichem Raum
GrößeNF - 4.606 qm, BGF - 8.826 qm, BRI - 44.495 kbm
KonstruktionHolz-Hybrid-Bauweise mit RC-Betonanteil, Fassadenverkleidung aus verkohltem Holz
BearbeitungszeitFebruar - Mai 2024
LeistungWettbewerbsbeitrag
Team
Architekturde lut architektur, Jurado Architecture, M-OST
LandschaftsarchitekturLandschaftsarchitektur Claudia Dahnke, Claudia Dahnke
Tragwerksplanung, BauphysikIngenieurbüro für Tragwerksplanung Dr.-Ing. Christian Müller, Dr. Christian Müller
TGABuro Happold, Pawel Lisiak
AkustikMüller-BBM Building Solutions GmbH, Radoslaw Arkadiusz Ciszewski
BrandschutzimKONTEXT.berlin GmbH, Younghi Hong
VisualisierungSTUDIO KMH, Stefan Kasmanhuber
ModellbauHeGe Modellbau, Dirk Hermandung
Besonderer Dank an unsere FreundeSabina Strambu, Hubert Trammer, Pedro Peña, Kei Sugimoto

Konzept

Grundidee für den Neubau ist eine Symbiose aus Städtebau, Architektur und Landschaft. Das neue City Forum thematisiert die ansteigende Topografie, indem sich das Bauvolumen darin einfügt. Durch Ecken und Verlaufssprünge stellt das Gebäude eine Abstraktion der Landschaft dar, und staffelt sich vom Eingangsniveau über das Foyer bis zur Terrasse und schließlich zur Dachterrasse. 

Städtebauliche Einbindung

Das kompakte Gebäude erweitert die Fußgängerzone vom Alten Markt über die Bahnlinie bis zum Rathaus. Im Nordwesten fügt sich eine Mischnutzung an das neue Rathaus an, dient als Schallschutz für das Wohnquartier und bietet gastronomische Angebote im Erdgeschoss mit Blick auf die Außenbühne. Ein runder Pavillon im Nordwesten, als Café und Treffpunkt im Park, schließt den Platz ab. Im Süden flankiert eine neue Fußgängerstraße das Forum.

 

 

Freiraumplanung

Ein breiter, barrierefreier Flanierweg verbindet die Innenstadt über den Bahnhof mit dem neuen Stadtquartier. Der Weg, der durch eine grüne Rasenfläche verläuft, bietet Sitzmöglichkeiten und Aktivitätsinseln. Eine breite Freitreppe mit Sitzstufen und ein Aufzug überwinden die topografische Raumkante zwischen Rathaus und City Forum. 

 

Der Stadtplatz bietet durch Bauminseln und Sitzgelegenheiten hohe Aufenthaltsqualität und genug Platz für saisonale Angebote (Marktstände, Weihnachtsbaumverkauf etc.). Helle Platten auf dem Vorplatz passen farblich zum Rathaus und kontrastieren das City Forum, während klimatolerante Bäume den Quartiersplatz und die parkartige Wiese bereichern.

 

 

Funktionalität

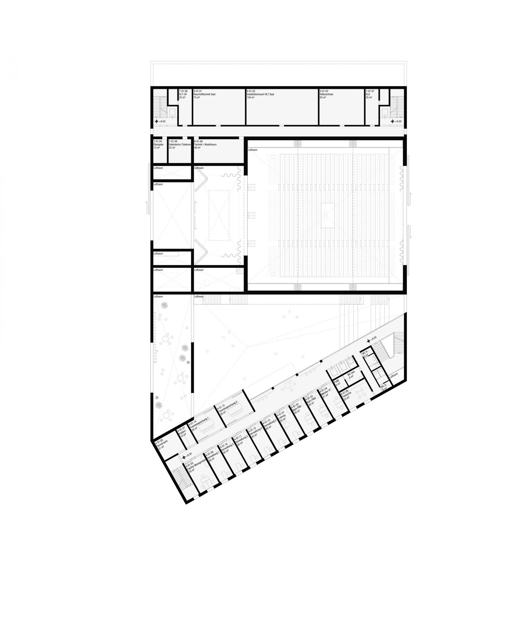
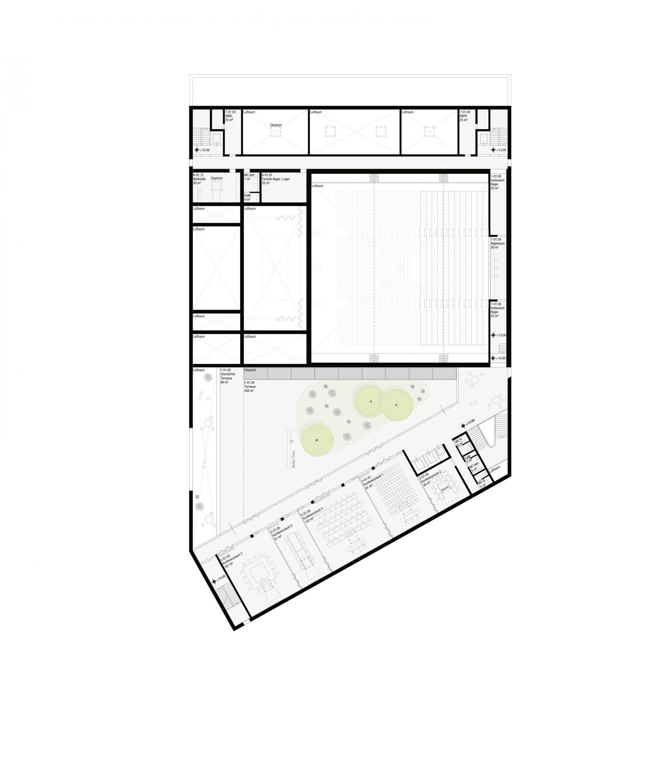
Das räumliche Erleben des City Forums beginnt in seiner Mitte. Die Plaza führt vom Haupteingang zum zentralen Atrium, das Einblicke in alle Funktionsbereiche bietet. Im Norden befinden sich der Künstlerbereich, die Bühnenanlieferung sowie Lager- und Technikräume. 

 

Im Süden liegen der Saal und die Gastronomie, die an das zentrale Foyer anschließen. Der Verwaltungstrakt befindet sich über der Gastronomie, und die Konferenzräume in der obersten Etage öffnen sich zur Dachterrasse, die als Pausen- und Freifläche dient. Verschiedene Nutzungs- und Abtrennungsszenarien sind möglich, und die räumliche Trennung zwischen Konferenzbereich und Saal ermöglicht parallele Nutzungen.

 

Veranstaltungssaal

Der Saal ist als Blackbox in Massivbauweise für gute Schalldämmung konzipiert. Die rückseitige Außenbühne und große Flügeltore ermöglichen es, das Gebäude im Südwesten zur Plaza zu öffnen und für Freiluftaufführungen zu erweitern. Die Plaza wird so temporär zum Kulturraum. Der Saal kann zudem mit mobilen Akustikelementen geteilt und zum Foyer hin geöffnet werden. Die akustisch wirksamen Wände und Decken unterstützen verschiedene Nutzungen wie Konzerte, Theateraufführungen, Tagungen und Bankette.

 

 

Materialität / Konstruktion

Das Gebäude wird in Holz-Hybrid-Bauweise geplant. Das Kellergeschoss, das Erdgeschoss mit Saal und Bühne sowie die Treppenkerne und Aufzugsschächte bilden ein stabiles Fundament aus Recycling-Beton. Die restliche Tragstruktur einschließlich der Dachkonstruktion wird in Holzbauweise ausgeführt. In den Büro- und Konferenzbereichen erhalten die Innenwände einen Lehmputz.

 

Die Fassade wird durch verkohltes Holz geprägt, das nicht nur eine markante Ästhetik schafft, sondern durch die traditionelle Technik der Holzverkohlung auch besonders langlebig und witterungsbeständig ist.